


大家好,今天气体分离又和你见面啦!本期小课堂,我们聊聊低温泵的话题,讲一讲低温泵的结构和它的原理,以及对常规操作及故障的分析,希望能促进气体分离行业的发展与进步。
低温液体泵(简称低温泵)是在石油、空分和化工装置中用来输送低温液体(如液氧、液氮、液氩、液态烃和液化天然气等)的特殊泵。它的用途是将低温液体从压力低的场所输送到压力高的场所。随着空分技术的发展,低温液体得到了广泛的应用及发展。其在空分设备中的只要作用为:用于液体循环;或是从贮槽抽取液体并将其压入汽化器,汽化后送给用户。
按照工作原理的不同,低温泵主要分为往复式和离心式两类。
低温液体泵简介
泵直接与一个电机连接。

泵通过一个支撑与电机法兰装配,泵轴直接与电机轴相连,对于叶轮的支撑,电机轴承有非常高的精确度和外部全密封。
不需要的冷量从冷端到电机轴承的蔓延可通过一个绝缘环降低到最小限度。这个绝缘环有很小的接触面积和长的支撑臂,泵的密封为带氮气吹扫的迷宫密封。
根据泵的型号(暖箱、阀门室、冷箱)任选下列安装部件:压力调整仪组件安装在泵或控制盘上;在排出或吸入端安装温度探头;为迷宫密封氮气吹扫提供带压力计和调整阀的压力调整仪组件;在电机的前法兰可以安装一个自调整的加热器,阻止电机轴承结霜。
电机必须符合低电压EN60204-1标准,而且电磁与EMC兼容。电机保护等级必须至少是IP55。
机器必须装备一套停止控制系统,允许在安全状态下常规停车,这个停车指令必须比开车指令具有更高的优先权,控制系统和电控制箱符合60204-1标准,当电控制安装在室内,其最低保护等级必须是IP22。当电控制安装在室外,其最低保护等级必须是IP55。
机器必须装配一套紧急停车设备并与EN418的标准相符,易见易操作。在进行一个紧急停车后,不允许自动重起动。
机器和电机必须安装在足够稳定的框架上,以防止翻掉或不适当位置危险。如果有必要,框架必须装一个地连接和限制螺栓。
危险区域立标牌被告知,当在运行状态下,泵不必进行处理。确保气体、所使用的材质与系统的设计必须兼容(氧气兼容),根据与泵流体的兼容情况,选择材质。如果工作人员不遵守安全规则,使用高压状态的液态气体或气体具有很大的风险,系统中所使用的液态气体可能发生致命的或极其严重的伤害,火灾,爆炸或其他灾难。
清除油脂以便使用氧气,所有部件必须清除掉油脂以便安全地使用氧气。
在清除掉油脂之后,部件和设备应密封起来,防止污染。在安装之前不得拆开密封和保护。
用三氯乙烯脱过油脂,可以用于液氧,这些泵可以不再进行处理,直接用于液氧。这些泵交货时就带有润滑脂/润滑油,适合于液氧的工作条件。有些泵与齿轮箱一起交货的,按照用户的要求,带有矿物油,标签上写着“不适用于氧气”。
密封氮气在生理学上是一种无毒的惰性气体,当将空气中的氧气置换为氮气后,通过降低氧气的局部压力,引起窒息,它对人体组织起有害作用。
由氮气引起的首次窒息症兆:在头部、前额附近有绷紧或压紧的感觉;在舌头、手指尖和脚趾头有麻痹的感激;讲话困难、微弱,导致不能发声;不被察觉的很快降低了身体运动和协调运动的能力,导致全身僵化;降低对外部世界的感应、感觉器官特性衰减,特别是触觉。
泵的存放
泵如果不立即使用,必须将泵储存在干燥的环境中,防止受到油,灰尘,子和水的侵害。
重要性:不要将包在泵外面的聚已烯,管路接头的保护盖,以及保护插塞拆除,以便保护泵的内部零件不受污物和湿气的侵害。只有在安装前,才可以将这些保护件拆除。
注意事项:要定期对存放的设备和备件进行检查,至少每隔6个月要检查一次。从适合于海洋运输的包装箱中取出的设备,不必进行这样的检查。在使用之前,必须将湿气,灰尘等和锈除掉。注意,对于用于液氧的部件,如果在使用前安装了或存放了6个月以上,在起动前必须拆卸并进行认真的检查。
以上给出的时间只是我们的建议,必须遵照用户自己的安全规则。
如果存放的时间很长(一年以上)。我们建议,将泵包装在适合于海洋运输的包装箱内。设备如果包装在海洋运输的包装箱内,可以在敞开的保护棚内存放2年。
安装
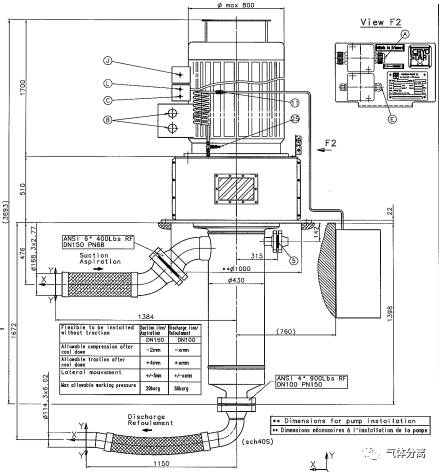
(1) 配管
要谨慎地设计配管,以便在泵运行或停止时,不会将应力传递到泵上。还必须考虑到热胀冷缩。应该安装软管部件,必要时安装臌胀节,以避免将振动传递到泵,或者使泵的法兰承受过大的应力。
控制盘:如果控制盘是散装供货的,接到泵的管路长度必须小于4米,并要尽量地减少弯头。(最大压力降为100毫巴)。
必须保证接到控制盘的入口管路尺寸要足够,保证足够高的入口气体压力,以满足在有关的“设定值清单”中给出的泵运行期间的密封气体值。
吸入管路重要性:为了确保正确的安装操作,必须要求一个净吸压头NPSH,因此必须按照以下规则进行:应该按照流量选择设计管路的直径,流体的最大速度大约为1米/秒。较小的速度可以减少压力损失,但是不利于增加热泄漏。
吸入管路从罐的排放接头连接到泵的吸入接头,应该尽量地直,尽量地短。即不能角度突变,也不能有最高点。
管路必须有个朝着泵的不变的向下的倾斜度,以便形成的蒸发气体能够返回到罐内。
泵如果不与罐相连接,那么,管路必须有个朝着泵的不变的向上的倾斜度。
为了阻止外部物体渗透到泵中。必须在管道上装一个过滤器,对于氧气系统,外来颗粒会引起火灾和爆炸。
吸入过滤器的过滤等级必须为560微米,其有效面积至少应该为吸入管路面积的1.5倍。
为了减少蒸发(热入口)所有支管应尽可能靠近安装,为了限制蒸发带来的损失,你应该考虑隔热。

(2)吸入管线的设计
吸入管路的安装:管路必须尽量的直和短,隔热良好,对泵没有作用力,泵的吸入接管(接头和阀门)的直径相同,接头和阀门被限制到最少,朝着泵有不变的向下倾斜度(泵与罐相连接),朝着泵有不变的向上倾斜度(泵与罐不相连接)。需要的接头和阀门,切断阀,安全阀,柔性管路部分,用于液氧的过滤器(泵仅用在液氧条件下时);在泵的排放管路上的‘止回阀’。
建议在每个支路上安装关断阀、压力表、管径逐渐变化、所有的吸入管路都要避免突然弯曲、非液氧的条件下也采用过滤器、隔热。
有异径管时采用偏心异径,泵进口采用顶平(防气袋),出口采用底平(防止液袋)。
吸入管路可能的安装错误

注意:压力降,热泄漏= 降低泵的净吸入压头
(3)排放管路
排放管路的直径应该与泵的排放接管的直径相同,如果管路比较长,太大的压力损失会对流量有很大的限制,在这种情况下,排放管路的直径要稍微大一些。
必须联系泵的特性曲线来考虑排放管路的特性。应该在排放管路上安装切断阀,止回阀和压力表。
(4)旁路管路
为了加快冷却,容易起动,应该有旁路管路。旁路管路的直径应该与泵的排放管路的直径相同,或者按照泵的最小流量来设计。
(5)排空管路
应该为罐提供带有切断阀排空管路,这有利于管路和泵的排气,有利于快速的降温。(只用于较大的泵,例如,2级泵)。
排空管路的安装应该保证防止气体形成蒸汽包。
密封气体系统(迷宫密封)
(1) 概述
必须确保不允许湿气进入迷宫密封室,在接入了密封气体之前,确保泵不要受到雨淋,在泵冷却之前,必须保证密封气体流入迷宫密封,确保迷宫密封中不存在湿气。密封气体的流入时间各不相同,取决于局部的条件,但不得少于10分钟,然后再给泵降温。
必须完全按照以下的说明,确保精确建立密封气体。即使在泵不运行时,也要有密封气体。万一密封气体没有了,在冷却之前,要按照上述的第2步进行操作。密封气体的温度为T>-25℃室温。露点:-80℃密封气体必须是洁净的。必须安装孔眼为10微米的过滤器。必须保证过滤器不得堵塞。
(2)迷宫密封描述
迷宫密封由一系列不同内径可自调整的密封环组成。由于它的这个特点,可形成连续的膨胀腔。这种特殊的间隔环可以将迷宫气体和其它有可能进入的混合气体分离(密封气体和泵气)。
迷宫密封有三个或四个孔。由低温星或用户将它连接起来。
第一个孔指示参考压力 Pref;第二个孔是密封气体入口压力Pin1=X;第三个孔是混合气体出口压力Pout=Y(吹扫和泵流体);仅对于带Pin23个腔室的迷宫密封,第四孔是允许流进的密封气体压力: Pin2=Z。
在这种情况下,在Pin2有可能流进密封气体及与泵出的气体相同的气体。它可以减少泵的污染。在Pin1,密封气体是氮气,不采用这种选择,堵住入口压力指示Pin2。
考虑以下情况: Pref=参考压力(叶轮的背面);Pin1 X=密封气体的入口压力;Pout Y=密封气体的出口压力。
我们建议采用干氮气作为密封气体。
要求:入口压力Pin1,X端口必须在高于参考压力0.1-0.2bar范围内,出口压力Pout,Y端口必须在低于参考压力0.1-0.2bar范围内。(任选:如果如果入口压力Pin2与端口Z连接,它必须在高于参考压力 0.1-0.2bar范围内。)
注意:如果迷宫密封是旧的,将设定点从0.1-0.2bar调整到0.2-0.3bar。这个系统是通过一个特殊的不同压差计来控制的,这个压差计装在Pref接口。这种安装允许对Pin- Pref的压差进行调整,并且与出口管线上的出口阀相连去调节出口压力Pout。
一个压差计(pos.27)显示出口压力和参考压力的压差。黑针显示高压(参考),红针显示低压(出口)。
压差转换器转换参考压力和入口压力之间的压差。流量计的刻度(pos.27)测量一个7 bar的工作压力。

润滑剂
应该使用下面的润滑剂(电动机轴承用的润滑脂)。